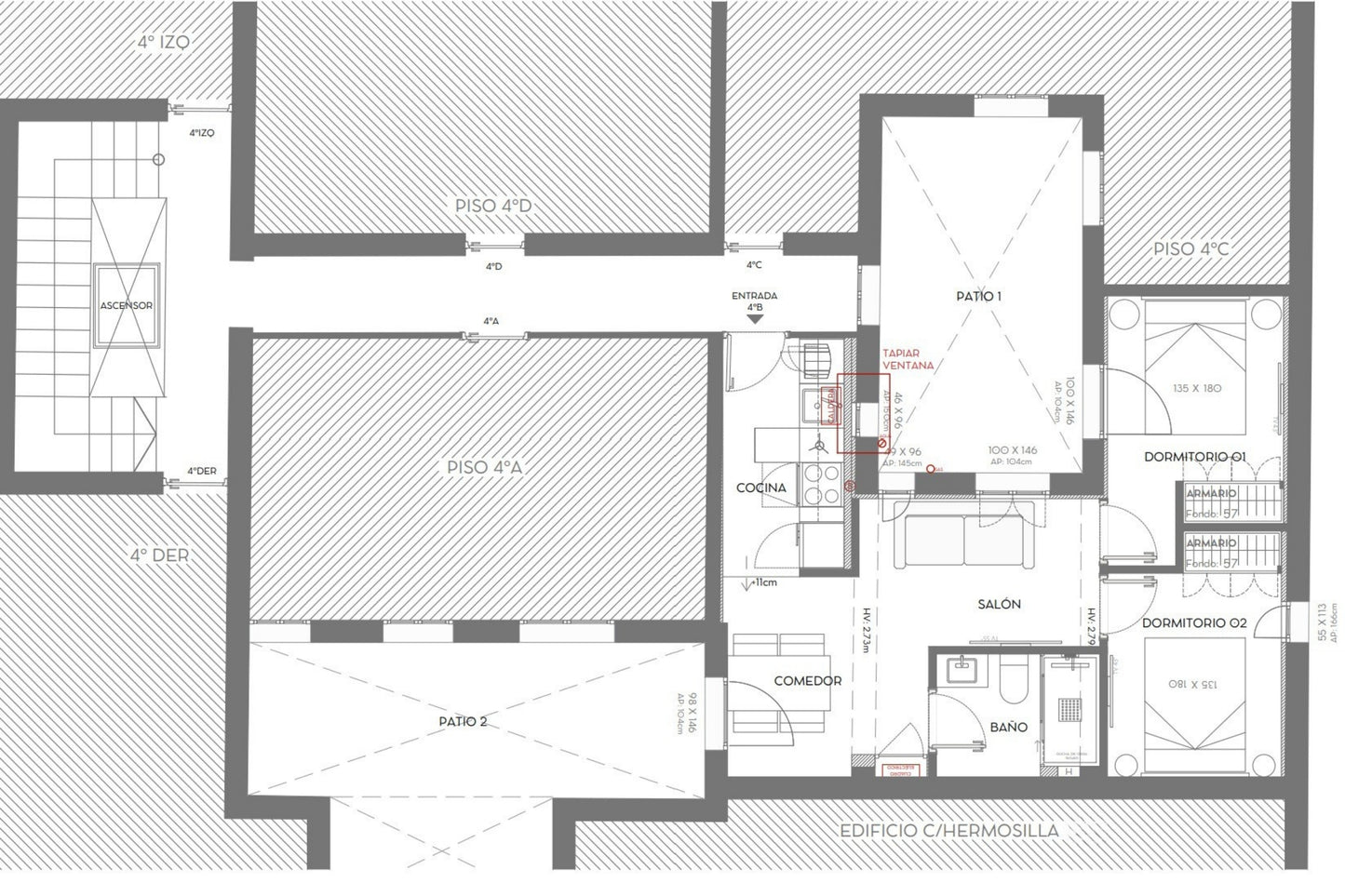
En la tranquila zona de Fuente del Berro, este piso de 51 m² combina diseño contemporáneo, confort y una cuidada distribución que optimiza cada espacio. Situado en la cuarta planta de un edificio con ascensor y portería, la vivienda dispone de dos dormitorios dobles, un baño completo y una cocina abierta totalmente equipada. La integración entre cocina y salón–comedor genera un ambiente luminoso y acogedor, ideal para disfrutar de la vida urbana con comodidad. La calefacción y el aire acondicionado aseguran bienestar durante todo el año, mientras que sus acabados modernos aportan una estética fresca y elegante. Un hogar perfecto para quienes buscan privacidad, diseño y cercanía al centro de Madrid.
Si deseas conocer el precio, las condiciones o concertar una visita privada, completa el formulario y te contactaremos personalmente.
- Superficie: 51 m²
- Habitaciones: 2 dormitorios dobles
- Baños: 1 baño completo
- Terraza / jardín / garaje: No especificado
- Planta o tipo de vivienda: 4ª planta, piso
- Estado: excelente conservación, totalmente equipada
- Zona o barrio aproximado: Salamanca – Fuente del Berro
- Otros: Ascensor, portería, calefacción, aire acondicionado
Rodeado de parques, como la Quinta de la Fuente del Berro, y a pocos minutos del Retiro y el Wizink Center, este piso ofrece una experiencia de vida serena y elegante. Ideal para quienes valoran la tranquilidad, el diseño y una ubicación privilegiada dentro del Barrio de Salamanca.
























